Home Start Back Next End
  
39
Bukaan ventilasi yang tepat merupakan faktor yang sangat penting bagi
kenyamanan ruang. Ventilasi yang baik adalah yang memungkinkan terjadinya aliran
udara selama 24 jam tanpa bantuan peralatan mekanis. Harus ada ventilasi untuk
malam hari bila jendela dan pintu ditutup.
Perletakan dan luas ventilasi dapat menentukan arah aliran dan volume udara
sesuai yang diinginkan. Aliran udara sebaiknya terbentuk pada tempat dimana
manusia berada. Ventilasi yang hanya pada satu
sisi dinding menyebabkan angin
tidak mengalir.
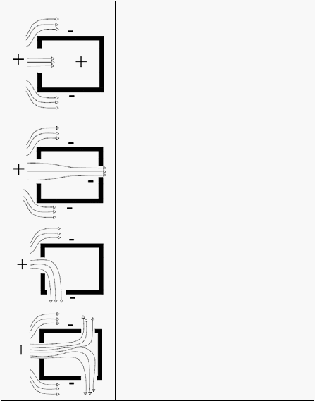
Tabel 2.7  Flow Udara
Jenis Bukaan
Flow Udara
-
Angin berhembus dari daerah bertekanan
tinggi ke rendah. Lubang angin masuk
tanpa lubang angin keluar, angin tidak
mengalir sebab tekanan udara ruang
menjadi tinggi.
-
Dengan ventilasi silang, membuka jalan
udara masuk dan keluar,udara mengalir.
Lubang keluar < lubang masuk= Aliran
lambat, Lubang keluar > Lubang
masuk=Aliran cepat.
-
Lubang keluar dekat lubang masuk
terjadi daerah yang tidak dialiri angin.
-
Bila diinginkan lubang keluar pada dua
sisi, udara berputar lebih jauh masuk
kedalam ruangan.
Sumber : www.pendopo.com, diakses Tanggal 25 Desember 2014
Word to PDF Converter | Word to HTML Converter